logo
PREMIUM
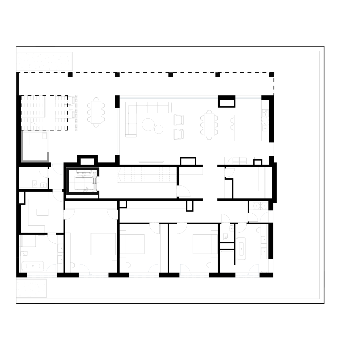
Zicher_7np_Penthouse A upravené z galtonu
zicher-exterier-1.png
zicher-exterier-7NP.jpg
zicher-exterier-6.png
Chodba 27,59 m²
WC 8,37 m²
Kuchyňa s obývacou miestnosťou 60,73 m²
Práčovňa 2,74 m²
Kúpeľňa I. 12,64 m²
WC 1,64 m²
Izba I. 15,31 m²
Izba II. 15,25 m²
Spálňa 24,23 m²
Šatník 11,57 m²
Kúpeľňa II. 10,99 m²
Kúpeľňa exteriér 4,11 m²
VÝMERA INTERIÉRU 195,17 m²
VÝMERA EXTERIÉRU 196,85 m²
PIVNIČNÁ KOBKA 1,61 m²
CELKOVÁ VÝMERA 393,63 m²

Kód 31A_E_03

south

JV

south

SV

south

SZ

Benefity

Chodba

  • komoda
  • šatníková skriňa s hĺbkou 60 cm

Spálňa

  • executive suite
  • komoda
  • manželská posteľ 200 cm x 200 cm
  • priamy vstup na terasu
  • privátna kúpeľňa
  • šatníková skriňa s hĺbkou 60 cm
  • viacúčelový stolík

Obývacia izba

  • priamy vstup na terasu

Kuchyňa

  • kuchynský ostrov
  • priamy vstup na terasu
  • veľká úložná zóna

Kúpeľňa I.

  • bez WC
  • dvojumývadlo
  • priamy vstup na terasu
  • vaňa

Kúpeľňa II.

  • dvojumývadlo
  • priamy vstup na terasu
  • sprchovací kút
  • vaňa
  • WC

Sklad

  • práčkový ventil
  • šatníková skriňa

Šatník

  • priamy vstup do spálne
  • veľká úložná zóna

Izba I.

  • manželská posteľ 200 cm x 200 cm
  • priamy vstup na terasu
  • šatníková skriňa s hĺbkou 60 cm
  • viacúčelový stolík

Izba II.

  • manželská posteľ 200 cm x 200 cm
  • priamy vstup na terasu
  • šatníková skriňa s hĺbkou 60 cm
  • viacúčelový stolík

WC

  • predpríprava na bidet
  • samostatná miestnosť
  • umývadlo

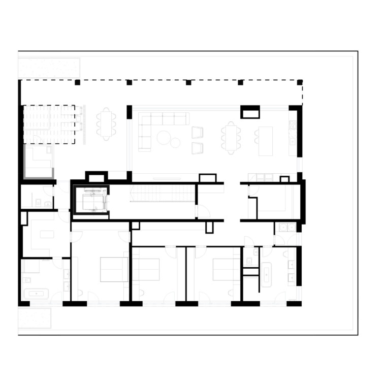
Pôdorysné alternatívy

Dostupnosť bytu na podlaží

Zdieľať Ako postupovať?

Máte záujem o tento byt?
Kontaktujte nás

    Štandardy

    Bývanie, ktoré vám sadne v každom čase

    Voliteľné
    doplnky k bytu

    Garážové státie

    18GS

    zicher-parkovanie orezané na web z galtonu

    13.75 m²

    25 000 € s DPH

    arrow-topright
    Parkovacie miesto

    19PM

    zicher-parkovanie orezané na web z galtonu

    12.5 m²

    12 500 € s DPH

    arrow-topright
    Garážové státie

    17GS

    zicher-parkovanie orezané na web z galtonu

    13.75 m²

    25 000 € s DPH

    arrow-topright
    Garážové státie

    23GS

    zicher-parkovanie orezané na web z galtonu

    19.25 m²

    25 000 € s DPH

    arrow-topright
    Parkovacie miesto

    23PM

    zicher-parkovanie orezané na web z galtonu

    12.5 m²

    12 500 € s DPH

    arrow-topright

    Podobné byty
    z kategórie

    PREMIUM

    Penthouse

    Zicher_7np_Penthouse B upravené z galtonu
    zicher-exterier-1.png
    zicher-exterier-7NP.jpg
    zicher-exterier-6.png

    Dostupný vo viacerých pôdorysoch

    6. poschodie - penthouse

    zazmluvnený

    322,14 m²

    arrow-topright
    PREMIUM

    2 izbový byt typu B

    B-E-02
    zicher-exterier-1.png
    zicher-exterier-7NP.jpg
    zicher-exterier-6.png

    Dostupný vo viacerých pôdorysoch

    2. poschodie - B

    rezervovaný

    71.17 m²

    186 000 € s DPH

    arrow-topright
    PREMIUM

    2 izbový byt typu B

    B-E-01
    zicher-exterier-1.png
    zicher-exterier-7NP.jpg
    zicher-exterier-6.png

    Dostupný vo viacerých pôdorysoch

    2. poschodie - B

    rezervovaný

    71.17 m²

    186 000 € s DPH

    arrow-topright
    PREMIUM

    5 izbový byt typu O

    O-E-02-VVD-orezane.png
    zicher-exterier-1.png
    zicher-exterier-7NP.jpg
    zicher-exterier-6.png

    Dostupný vo viacerých pôdorysoch

    4. poschodie - O

    rezervovaný

    142.95 m²

    382 000 € s DPH

    arrow-topright
    PREMIUM

    5 izbový byt typu O

    O-E-03-SVD-orezane-1.png
    zicher-exterier-1.png
    zicher-exterier-7NP.jpg
    zicher-exterier-6.png

    Dostupný vo viacerých pôdorysoch

    4. poschodie - O

    rezervovaný

    142.95 m²

    382 000 € s DPH

    arrow-topright

    Nami.design

    Od minimalizmu
    až po avantgardu

    Interiéry, ktoré vyjadrujú charakter osobnosti. Vymyslené a navrhnuté nami pre vás. S vášňou k dizajnu,
    inšpiráciou v životných príbehoch. Navštívte náš showroom v ukážkovom byte a spoločne nakonfigurujeme
    interiér inšpirovaný práve vami.

    BEFORE AFTER